Beschreibung
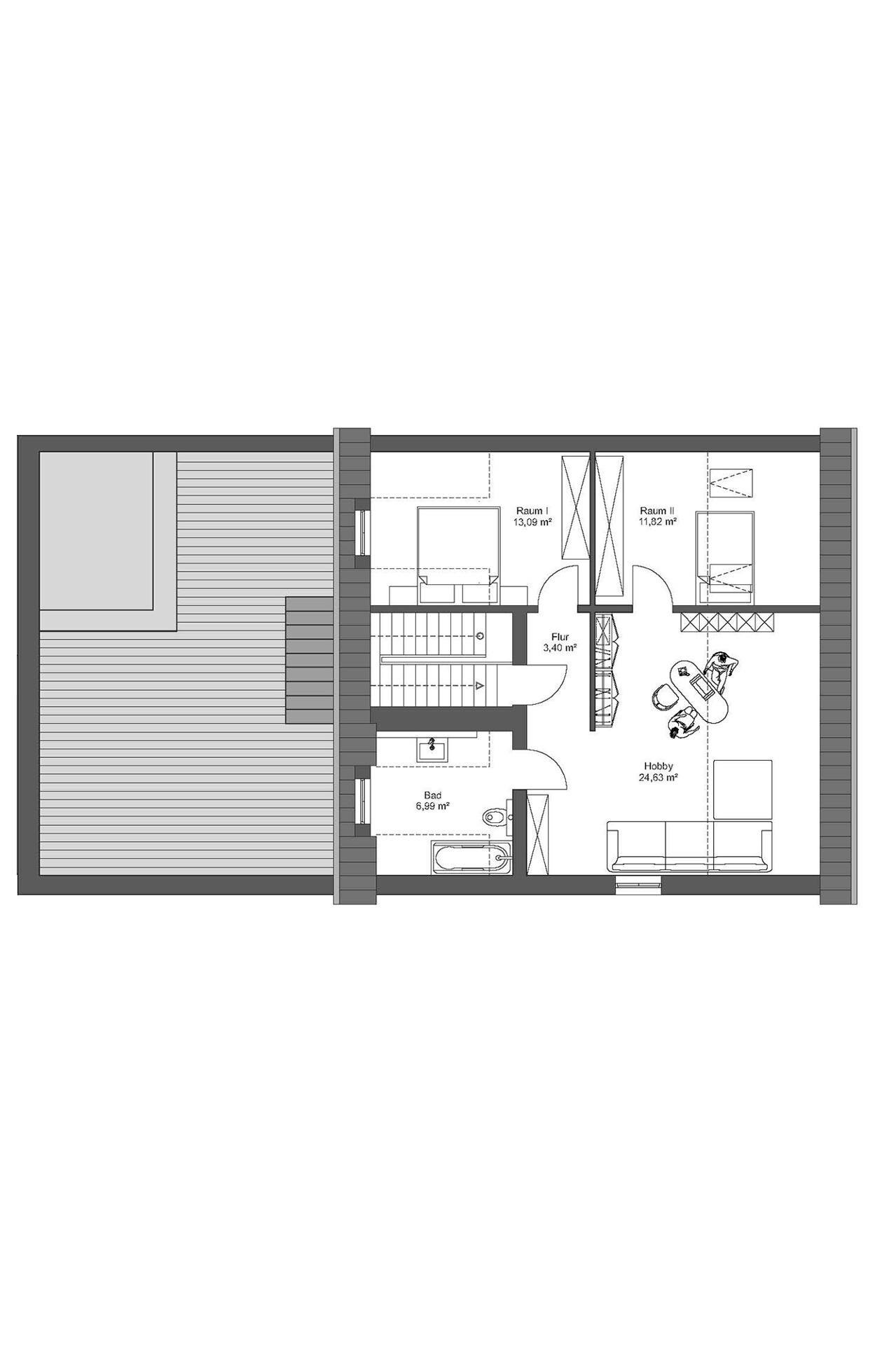
Zu vermieten ist ein großzügiges 2-Familienhaus aus dem Jahr 1955, das 2011 umfassend modernisiert wurde und heute zeitgemäßen Wohnkomfort auf rund 245 m² Wohnfläche bietet. Das Haus erstreckt sich über drei Ebenen und verfügt über insgesamt acht Zimmer, die flexible Nutzungsmöglichkeiten für Familien, Mehrgenerationenwohnen oder die Kombination von Wohnen und Arbeiten eröffnen. Das Erdgeschoss empfängt Sie mit einem hellen, einladenden Wohnzimmer, einem großzügigen Schlafzimmer, einer funktional geschnittenen Küche und einem Tageslichtbad mit Dusche. Im ersten Obergeschoss setzt sich das familienfreundliche Raumkonzept fort: Ein harmonisch geschnittenes Wohnzimmer, zwei flexibel nutzbare Schlafzimmer, eine voll ausgestattete Küche mit direktem Zugang zur Dachterrasse sowie ein Tageslichtbad mit Dusche schaffen ein komfortables Wohnumfeld. Das Dachgeschoss ist ideal für Kinder, Gäste oder kreative Nutzungsideen: Zwei helle Zimmer, ein offener Hobby- und Wohnbereich sowie ein großzügiges Tageslichtbad mit Badewanne bieten Rückzugs- und Entfaltungsmöglichkeiten. Das Haus liegt auf einem 394 m² großen Grundstück, das gemeinschaftlich mit einem renommierten portugiesischen Restaurant genutzt wird, und besticht durch sein charmantes Umfeld. Dieses Objekt vereint großzügige Raumaufteilung, flexible Nutzungsmöglichkeiten und gepflegten Wohnkomfort und bietet damit ein seltenes Mietangebot für anspruchsvolle Familien oder Interessenten, die ein vielseitiges, großzügiges Zuhause suchen.Ausstattung
Objektdaten Baujahr: 1955 Modernisierung: 2011 Grundstücksgröße: 394 m² (gemeinschaftliche Nutzung mit einem renommierten portugiesischen Restaurant) Wohnfläche: ca. 245 m² Zimmer: 8 Zimmer auf 3 Ebenen Nutzungsprofil: Ideal für Familien, Mehrgenerationenwohnen oder die Kombination aus Wohnen & Arbeiten Wohnbereiche im Detail Erdgeschoss – Komfortables Wohnen auf einer Ebene Lichtdurchflutetes Wohnzimmer mit angenehmer Raumwirkung Großzügiges Schlafzimmer mit optimalem Rückzugscharakter Separate, funktional geschnittene Küche Badezimmer mit Dusche 1. Obergeschoss – Familienfreundliche Wohnatmosphäre Großzügiges Wohnzimmer mit harmonischem Grundriss Zwei Schlafzimmer, variabel nutzbar Voll ausgestattete Küche mit direktem Zugang zur Dachterrasse – perfekt für entspannte Momente im Freien Tageslichtbad mit Dusche Dachgeschoss – Attraktiver Rückzugsort für Kinder & Kreative Zwei helle Zimmer, ideal als Kinder-, Gäste- oder Hobbyräume Offener Hobby-/Wohnbereich mit gemütlicher Atmosphäre Großzügiges Tageslichtbad mit Badewanne – ideal für entspannte Auszeiten Besondere Vorzüge des Hauses Modernisierung 2011 sorgt für zeitgemäßen Wohnkomfort Attraktive Lage mit charmantem, kulinarischem Umfeld Perfekte Raumstruktur für Familien, die Wert auf Platz, Vielseitigkeit und Komfort legenLage
Die Immobilie überzeugt durch ihre zentrale Lage in Erkelenz mit unmittelbarer Nähe zum Bahnhof, wodurch eine ausgezeichnete Anbindung an den öffentlichen Nahverkehr und eine schnelle Erreichbarkeit der umliegenden Städte gewährleistet ist. Das Stadtzentrum ist bequem erreichbar, und sämtliche Einrichtungen des täglichen Bedarfs – darunter Supermärkte, Apotheken, Schulen und Kindergärten – befinden sich in fußläufiger Entfernung. Die Umgebung besticht durch eine ausgewogene Verbindung von urbaner Infrastruktur und ruhigen Rückzugsbereichen. Pendler profitieren von idealen Zugverbindungen nach Mönchengladbach, Düsseldorf oder Köln, während das vielfältige gastronomische Angebot und die Nähe zu kulturellen Einrichtungen und Freizeitmöglichkeiten die Attraktivität des Standortes zusätzlich erhöhen. Diese Lage vereint sämtliche Vorteile eines zentralen Wohnumfeldes mit hoher Lebensqualität und macht die Immobilie sowohl für Familien als auch für Berufspendler besonders interessant.Sie sehen gerade einen Platzhalterinhalt von Google Maps. Um auf den eigentlichen Inhalt zuzugreifen, klicken Sie auf die Schaltfläche unten. Bitte beachten Sie, dass dabei Daten an Drittanbieter weitergegeben werden.
Mehr InformationenDurch unsere Marktkenntnis vermarkten wir Ihre Immobilie schnell und zum bestmöglichen Preis.
Wir unterstützen Sie persönlich und zuverlässig bei der Suche nach Ihrer Traumimmobilie.
Seit vielen Jahren sind wir die Experten für Immobilien. Sprechen Sie uns an!
Mit unserem Service-Bereich halten wir Sie immer auf dem neuesten Stand.
Sie haben Fragen rund um diese Homepage? Rufen Sie uns an: Tel. 02244 – 870 975
Sie sehen gerade einen Platzhalterinhalt von Facebook. Um auf den eigentlichen Inhalt zuzugreifen, klicken Sie auf die Schaltfläche unten. Bitte beachten Sie, dass dabei Daten an Drittanbieter weitergegeben werden.
Mehr InformationenSie sehen gerade einen Platzhalterinhalt von Instagram. Um auf den eigentlichen Inhalt zuzugreifen, klicken Sie auf die Schaltfläche unten. Bitte beachten Sie, dass dabei Daten an Drittanbieter weitergegeben werden.
Mehr InformationenSie sehen gerade einen Platzhalterinhalt von X. Um auf den eigentlichen Inhalt zuzugreifen, klicken Sie auf die Schaltfläche unten. Bitte beachten Sie, dass dabei Daten an Drittanbieter weitergegeben werden.
Mehr Informationen